REQUEST A TOUR If you would like to see this home without being there in person, select the "Virtual Tour" option and your agent will contact you to discuss available opportunities.
In-PersonVirtual Tour

$ 2,400,000
Est. payment | /mo
6.44 Acres Lot
$ 2,400,000
Est. payment | /mo
6.44 Acres Lot
Key Details
Property Type Vacant Land
Sub Type ImprovedLand
Listing Status Pending
Purchase Type For Sale
MLS Listing ID 20230077395
Lot Size 6.440 Acres
Acres 6.44
Property Sub-Type ImprovedLand
Property Description
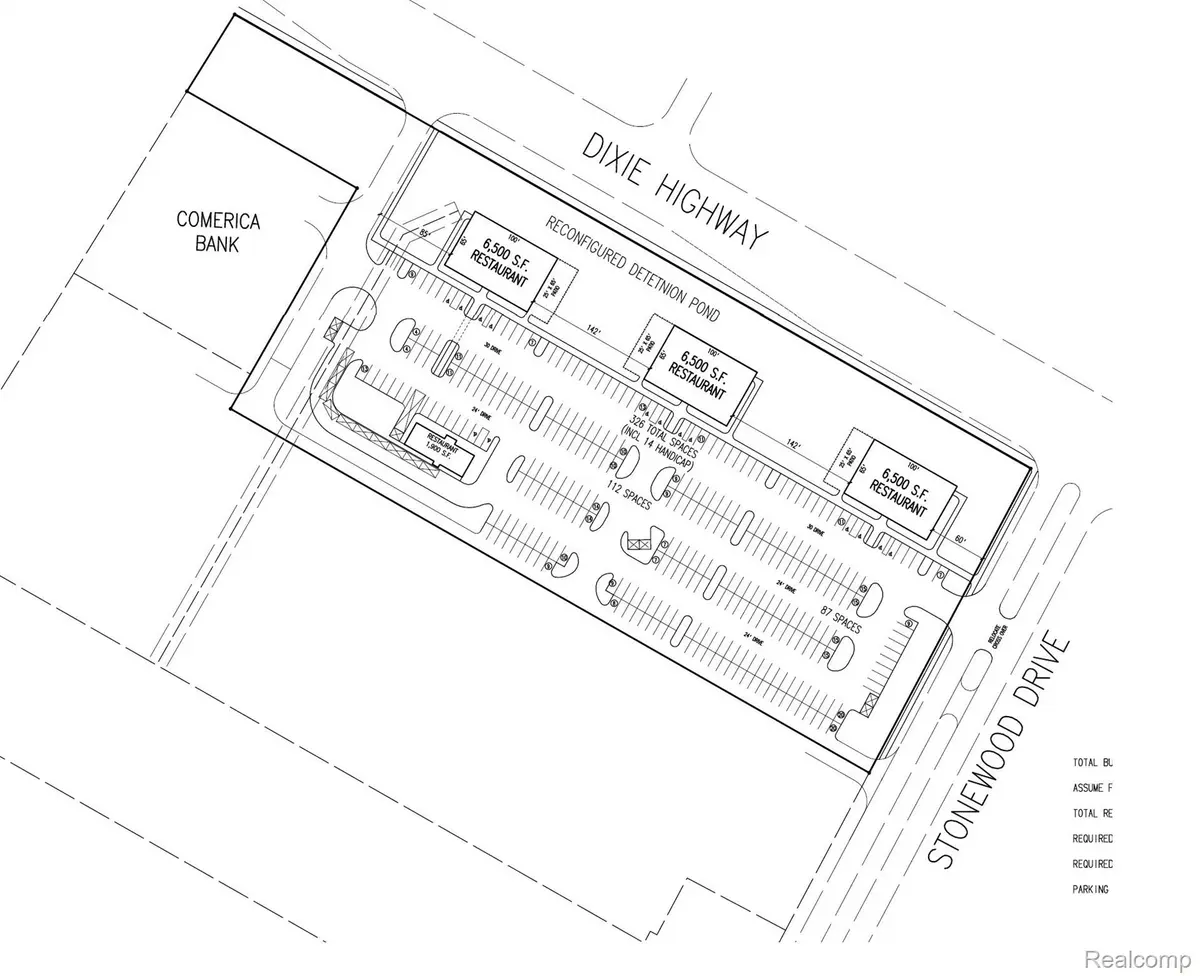
Concept site plans as shown can accommodate (3) 6,500sqft restaurant pads w/ outdoor seating + drive through or (3) 9,000 sqft retail buildings. Owner will consider selling individual pad sites. Site plan is totally flexible. 6.44 acres of commercial land with approx 773 ft of Dixie Hwy frontage in Clarkston just 1.1 miles from I-75 interchange and ramps. 100% of all governmental approvals as a PUD for any kind of reasonable commercial, esp restaurants. Property is physically improved, entrances off Dixie Hwy on both ends of the property and curb cuts are complete. Comerica Bank sits on one end of the property, a high-end assisted living facility is slated for the parcel directly behind the property, and surrounding the com property is a 400 acre res dev called Parks at Stonewood. Kruse's Deer Lake Inn, a highly successful rest sits across the street. Seller is open to either a J/V, outright sale or ground lease. Mailing address TBD
Location
State MI
County Oakland
Area Area02081Independencetwp
Interior
Fireplace No
Exterior
View Y/N No
Building
Sewer Public Sewer, Sewer At Street
Water Public, WateratStreet
New Construction No
Schools
High Schools Clarkston
School District Clarkston
Others
Senior Community false
Acceptable Financing Cash, Conventional
Listing Terms Cash, Conventional
Special Listing Condition ShortSaleNo, Standard

©2026 Realcomp II Ltd. Shareholders
Listed by Preka Berishaj of Victor Properties, Inc
Nearby Locations


